全國咨詢服務電話: 186-0209-9133
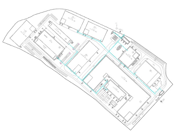
園區綜合管網系統
園區綜合管網設計標準:
1、與其他專業管道并排敷設時,間距需要保持450mm以上
2、與其他專業管道交叉敷設時,間距需要保持250mm以上
3、結合園區實際情況,建議敷設1根單管直徑為32mm的7孔梅花管+1根直接為110mm的PVC管,預埋深度建議大于600mm
4、廠房內部主干管道采用鍍鋅或烤漆鐵槽 綜合管網設計是園區智能化建設的基礎工作,來電咨詢免費獲取設計方案:18602099133
版權所有 ?2013-2020 廣東中誠智聯信息技術有限公司? 網站備案號:粵ICP備2021076623號?
各地區辦理推薦:廣州弱電集成系統? 深圳弱電集成系統? 珠海弱電集成系統? 汕頭弱電集成系統? 韶關弱電集成系統? 河源弱電集成系統? 梅州弱電集成系統? 惠州弱電集成系統? 汕尾弱電集成系統? 東莞弱電集成系統? 中山弱電集成系統? 江門弱電集成系統? 佛山弱電集成系統? 陽江弱電集成系統? 湛江弱電集成系統? 茂名弱電集成系統? 肇慶弱電集成系統? 清遠弱電集成系統? 潮州弱電集成系統? 揭陽弱電集成系統? 云浮弱電集成系統?
友情鏈接: 超聲波斷層掃描儀 |可視一鍵報警器 |UPS電源 |山特UPS |易事特UPS電源 |路燈立桿 |籃球架廠家 |仙桃萬詞霸屏 |汽車輪轂 |寧波眾諾自動化設備 |智能照明控制系統 |科技論文范文 |WMS倉庫管理軟件 |沈陽監控維修 |高低溫一體機 |玻璃反應釜 |建筑資質加盟 |小型壓路機 |易事特UPS電源 |在線客服系統 |